東大阪市高井田中4丁目 面積345坪 賃貸事務所付倉庫物件 高井田中倉庫事務所/ リフト 一棟貸し物件テナント募集

TEL:06-6776-2517受付9:30〜18:00 マーシック有限会社
2026年03月20日 20時36分 (金)

<< 前のページに戻る

物件コード 10161  -  33561

☆4階建て 事務所付き倉庫 EV6人乗り 貨物リフト450kg 事務所あり キューピクルあり
:天井高:1階4.2m、2~4階2.5m 空調設備
物件種別 事務所付倉庫  1棟貸し
所 在 階   1+2+3+4階
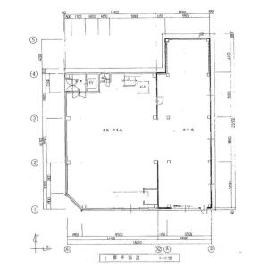
契約面積 345.37 坪( 1,141.73㎡)
多層階: 1階:96.2坪 2階:97.1坪 3階:95.59坪
賃料 (税込)
税率 10%
賃料:1,760,000円     共益費込み
敷金:6.0ヶ月     礼金:2ヶ月
特記事項 更新料無し 引渡日:令和 8年 7月
特記事項
●火災保険加入要

物件概要  写真B 図面

   
住 所 大阪府東大阪市高井田中4丁目
交 通 地下鉄中央線     高井田 駅   徒歩 8 分
おおさか東線   高井田中央駅 徒歩7分
区 分 事務所兼倉庫 (規模: 中型 )
構造規模 鉄骨造  地上 4 階建 
建築年月1990年2月 新耐震
駐車施設 無  
本体設備 / 荷物用EV:1基   ●流し台:室内専用 ●洗面台:室内専用●トイレ:室内専用   ●空調関係:無 ●セキュリティー:無
使用時間 日祝日の使用:使用可
道路 二方   北5.0m 東6.0m
その他 工業地域   基準階:天井高2.6m  
備考トイレ・ミニキッチン 残置物:人荷用エレベーター・貨物用リフト・キュービクル・空調整備等の残置物の故障等による修繕、メンテナンス費用等は借主負担 *天井高 1階:4.2m 2〜4階:2.5m *シャッター高 H:3.6m W:3.4m 建物面積 1F 318.86㎡ 2F 321.26㎡ 3F 316.28㎡ 4F 185.33㎡
更新日 2026-02-18  取引態様:仲介

※内覧、諸条件の相談はお気軽ご連絡ください。
ご来店前には必ずご連絡をお願い申し上げます。 電話06-6776-2517 土日祝日定休   

<< 前のページに戻る

おすすめ物件

おすすめ情報

広告掲載募集中

テナント募集掲載物件募集中!
当サイトへの掲載料は無料です。 貸し倉庫 貸し工場 貸し土地 貸しビル 商業物件 事業用物件 賃貸物件 売買物件 仲介物件を募集しております。
物件資料は、FAX 06-6776-2518 又は、メールにて受付ています。 (※ポータプルサイト掲載は有料になります。)

サイト運営会社

マーシック有限会社 仲介管理
〒542-0063
大阪市中央区東平2丁目1番28号
ノバカネイチ上町台103号

TEL:06-6776-2517
受付:9:30-18:00
定休日:土日祝日