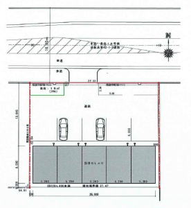
建物番号   11809  建物外観・共用・室内








   

 マーシック有限会社 Tel 06-6776-2517 HOME