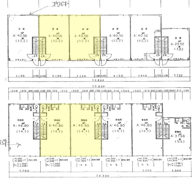
貸室番号   - 11189室内の写真です。















  マーシック有限会社 Tel 06-6776-2517