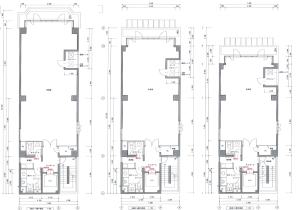
貸室番号   - 32905室内の写真です。




  マーシック有限会社 Tel 06-6776-2517