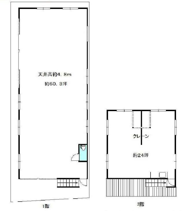
貸室番号   - 33506室内の写真です。













  マーシック有限会社 Tel 06-6776-2517