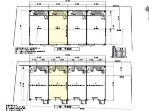
貸室番号   - 35016室内の写真です。













  マーシック有限会社 Tel 06-6776-2517