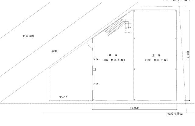
貸室番号   - 36272室内の写真です。



  マーシック有限会社 Tel 06-6776-2517