建物番号  [ 11750]  図面関係    

1階

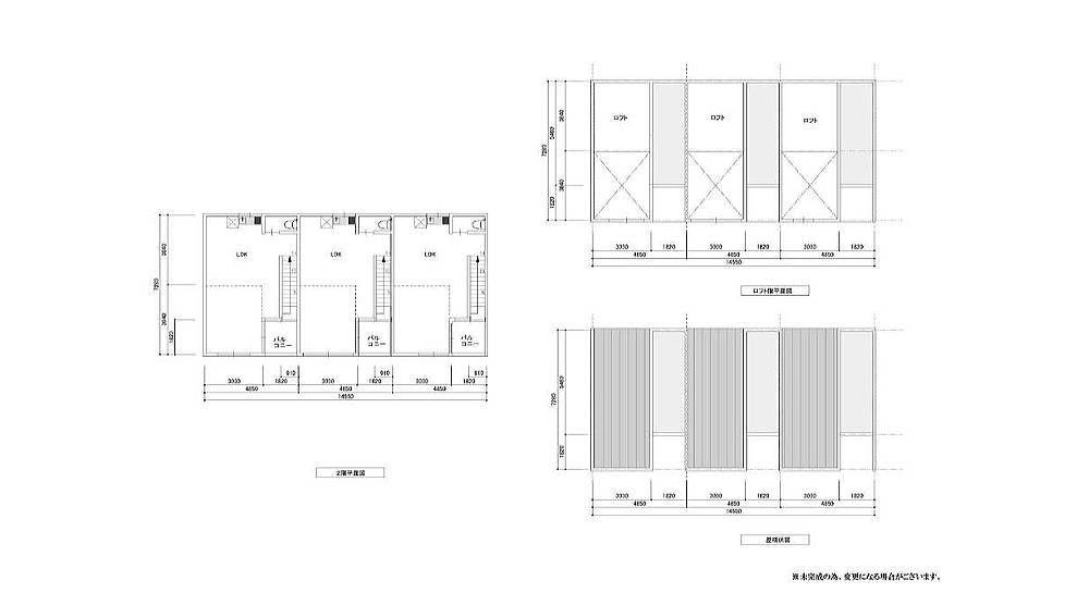
2階 連棟式 3戸1

造作等により図面と現状が相違する場合がございます。現況を優先しますのでご了承ください。マーシック有限会社 TEL 06-6776-2517