大阪市東住吉区矢田2丁目 面積46坪 賃貸事務所付倉庫物件 / 駐車場付テナント募集

TEL:06-6776-2517受付9:30〜18:00 マーシック有限会社
2026年02月07日 17時02分 (土)

<< 前のページに戻る

物件コード 8873  -  31081

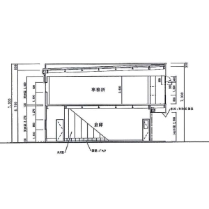
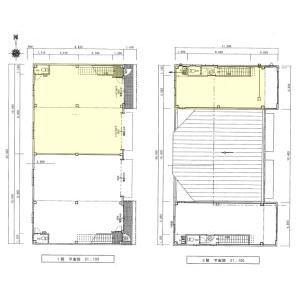
☆1階 30坪 (倉庫仕様) 2階 16.45坪 (事務所仕様) 駐車場 4台付 賃料に込 倉庫部分天井だか最高部分5m トイレ2ヶ所付き
物件種別 事務所付倉庫  《連棟式》 建物一部
所 在 階   1+2階 D
契約面積 46.45 坪( 153.55㎡)
多層階: 1階:30坪 2階:16.45坪
賃料 (税込)
税率 10%
賃料:341,000円     共益費込み
保証金:6.0ヶ月     解約引:2ヶ月
特記事項 更新料無し 引渡日:2026年1月上旬
特記事項
●火災保険加入要●賃貸保証会社加入要初回加盟料は賃料の100%・毎年更新料10%

物件概要 写真A 写真B 図面

   
住 所 大阪府大阪市東住吉区矢田2丁目
交 通 近鉄南大阪線     矢田 駅   徒歩 6 分
区 分 コンパクトオフィス (規模: 小型 )
構造規模 ALC造  地上 2 階建 
建築年月2017年5月 新耐震
駐車施設 有り   収容 4台
本体設備   ●流し台:室内専用 (電気温水器) ●洗面台:室内専用●トイレ:室内専用   ●空調関係:無 ●セキュリティー:無
使用時間 24時間使用可 日祝日の使用:使用可
道路 一方   東側8m
その他 第二種中高層住居専用地域    
備考トイレ:1階と2階 洋式を設置 1階倉庫部分一部分は天井だか5m インターフォン・専用駐車場4台付・1F2Fトイレ・電動シャッター・温水器 ※保証会社・・・加入要(借主様負担)
更新日 2025-10-22  取引態様:仲介

※内覧、諸条件の相談はお気軽ご連絡ください。
ご来店前には必ずご連絡をお願い申し上げます。 電話06-6776-2517 土日祝日定休   

<< 前のページに戻る

おすすめ物件

おすすめ情報

広告掲載募集中

テナント募集掲載物件募集中!
当サイトへの掲載料は無料です。 貸し倉庫 貸し工場 貸し土地 貸しビル 商業物件 事業用物件 賃貸物件 売買物件 仲介物件を募集しております。
物件資料は、FAX 06-6776-2518 又は、メールにて受付ています。 (※ポータプルサイト掲載は有料になります。)

サイト運営会社

マーシック有限会社 仲介管理
〒542-0063
大阪市中央区東平2丁目1番28号
ノバカネイチ上町台103号

TEL:06-6776-2517
受付:9:30-18:00
定休日:土日祝日