面積 △▽ 賃料 △▽ 住所 △▽ 駅 △▽ 階数 △▽ 種別 △▽ 更新 △▼
該当物件279 件<<先頭 <前のページ
次のページ> 最終>>
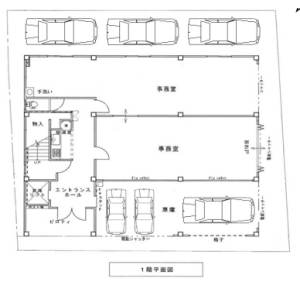
物件コード11895-36332 事務所付倉庫 一棟貸し物件
| 種別 | リフト 事務所付 駐車場付 電動シャッター / 第一種住居地域 |
|---|---|
| 面積 | 725.00 坪( 2,396.69 ㎡) 1階:333.6坪 2階:333.6坪 3階:57.8坪) |
| 所在地 | 大阪府大阪市平野区長吉川辺3丁目 地下鉄谷町線 八尾南 駅 徒歩 6 分 |
大型貸倉庫3階建て 1F/約333.6坪(倉庫)・2F/約333.6坪(倉庫)・3F/約57.8坪(事務所)建物前面・裏面駐車場あり リフト 駐車場:建物前面・裏面駐車場あり 引渡時期:2026年5月上旬頃予定
| 賃貸条件 (税込) | 賃料:3,987,500円 保証金:6ヶ月 解約引:2ヶ月 |
|---|
※クリック→物件の詳細【更新日:2026-05-20】
物件コード11053-35016 事務所付倉庫
| 種別 | 事務所付 電動シャッター / 第一種住居地域 |
|---|---|
| 面積 | 19.06 坪( 63.01 ㎡) 1階:9.53坪 2階:9.53坪 |
| 所在地 | 大阪府大阪市鶴見区諸口2丁目 地下鉄長堀鶴見緑地線 横堤 駅 徒歩 14 分 |
2階建て 1F:電動シャッター(リモコン付)、洗面、トイレ 2F:事務所内装 1階 倉庫兼ガレージとして使用可 2階事務所 駐車場1台確保15400円(税込)/月額要
| 賃貸条件 (税込) | 賃料:154,000円 保証金:7ヶ月 解約引:3ヶ月 |
|---|
※クリック→物件の詳細【更新日:2026-05-20】
物件コード11860-36284 倉庫兼工場 一棟貸し物件
| 種別 | リフト 事務所付 駐車場付 電動シャッター 工場使用可 / 準工業地域 |
|---|---|
| 面積 | 148.79 坪( 491.88 ㎡) 1階:74.39坪 2階:74.39坪 |
| 所在地 | 大阪府大阪市西成区津守1丁目 南海汐見橋線 津守 駅 徒歩 3 分 |
事務所付倉庫・工場 2階建て 各階74.39坪 電動シャッター・リフト有り・事務所スペース有り 大型車 トレーラー可 (1階245.94㎡、2階245.94㎡)車種により駐車8台可能! 前面道路幅員10m、現状渡し
| 賃貸条件 (税込) | 賃料:1,100,000円 敷金:3ヶ月 礼金:3ヶ月 |
|---|
※クリック→物件の詳細【更新日:2026-05-20】
物件コード11906-36344 事務所付倉庫 一棟貸し物件
| 種別 | クレーン 事務所付 駐車場付 電動シャッター / 第一種住居地域 |
|---|---|
| 面積 | 121.30 坪( 401.00 ㎡) |
| 所在地 | 大阪府大阪市淀川区加島4丁目 JR東西線 加島 駅 徒歩 8 分 |
2階建て事務所付倉庫作業所 クレーン2基(天井高4.5m)シャッターH3.9m×W4.3m 専用通路スペース 駐車可能
| 賃貸条件 (税込) | 賃料:770,000円 敷金:2ヶ月 礼金:2ヶ月 |
|---|
※クリック→物件の詳細【更新日:2026-05-20】
物件コード10801-34595 事務所兼倉庫 一棟貸し物件
| 種別 | / 準工業地域 |
|---|---|
| 面積 | 230.20 坪( 761.00 ㎡) 1階:90.25坪 2階:90.25坪 3階:24.28坪) |
| 所在地 | 大阪府大阪市鶴見区鶴見4丁目 地下鉄長堀鶴見緑地線 今福鶴見 駅 徒歩 8 分 |
3階建て倉庫 1階298.35㎡・2階298.35㎡・3階80.27㎡
| 賃貸条件 (税込) | 賃料:748,000円 敷金:3ヶ月 礼金:2ヶ月 |
|---|
※クリック→物件の詳細【更新日:2026-05-20】
物件コード11916-36358 倉庫 一棟貸し物件
| 種別 | 駐車場付 / 第一種住居地域 |
|---|---|
| 面積 | 10.02 坪( 33.12 ㎡) |
| 所在地 | 大阪府大阪市平野区加美正覚寺2丁目 JR関西本線 平野 駅 徒歩 13 分 おおさか東線 衣摺加美北駅 徒歩16分 |
★前面ガレージ(2台分)付き トイレ付倉庫 建物33.12㎡ 敷地140㎡
| 賃貸条件 (税込) | 賃料:143,000円 敷金:2ヶ月 礼金:2ヶ月 |
|---|
※クリック→物件の詳細【更新日:2026-05-20】
物件コード10914-34783 事務所付倉庫 一棟貸し物件
| 種別 | 事務所付 駐車場付 / 第一種住居地域 |
|---|---|
| 面積 | 32.05 坪( 105.96 ㎡) 1階:15.58坪 2階:16.47坪 |
| 所在地 | 大阪府大阪市住之江区新北島3丁目 地下鉄四つ橋線 住之江公園 駅 徒歩 10 分 |
車庫前に車数台駐車可能です。 1階 51.50㎡ 2階 54.46㎡ 建坪54.46㎡ 土地209.22㎡ 駐車スペースヤード広し
| 賃貸条件 (税込) | 賃料:550,000円 保証金:5ヶ月 解約引:2ヶ月 |
|---|
※クリック→物件の詳細【更新日:2026-05-20】
物件コード11915-36357 事務所付倉庫 一棟貸し物件
| 種別 | 事務所付 駐車場付 / 第一種住居地域 |
|---|---|
| 面積 | 71.09 坪( 235.00 ㎡) 1階:49.91坪 2階:21.18坪 |
| 所在地 | 大阪府大阪市城東区今福西5丁目 地下鉄長堀鶴見緑地線 蒲生四丁目 駅 徒歩 6 分 地下鉄今里筋線 蒲生四丁目駅 徒歩6分 |
事務所付倉庫 1階165㎡ 2階70㎡ 駐車は倉庫内 2トン車可 改装中 7月以降引渡し可 前面道路幅員8m 営業所向き トイレ 流し台新設
| 賃貸条件 (税込) | 賃料:605,000円 保証金:0円 解約引:1,100,000円 |
|---|
※クリック→物件の詳細【更新日:2026-05-20】
物件コード11601-35885 倉庫兼工場 一棟貸し物件
| 種別 | 事務所付 駐車場付 工場使用可 / 工業地域 |
|---|---|
| 面積 | 83.60 坪( 276.35 ㎡) |
| 所在地 | 大阪府大阪市西淀川区佃4丁目 阪神電鉄本線 千船 駅 徒歩 10 分 |
工場1階222.78㎡・ 事務所1階53.57㎡ 平屋建倉庫 外壁全面改装 リニューアル 天井高6.3m 平屋建 天井高6.3m 全面改装済 シャッター高さ2.9m・幅3m
| 賃貸条件 (税込) | 賃料:593,000円 敷金:6ヶ月 礼金:1ヶ月 |
|---|
※クリック→物件の詳細【更新日:2026-05-20】
物件コード11913-36354 事務所付倉庫 一棟貸し物件
| 種別 | 事務所付 駐車場付 電動シャッター / 工業地域 |
|---|---|
| 面積 | 15.69 坪( 51.87 ㎡) 1階:8.07坪 2階:7.62坪 |
| 所在地 | 大阪府大阪市西淀川区中島1丁目 阪神電鉄なんば線 出来島 駅 徒歩 12 分 |
2階建て 1階倉庫ガレージ26.67㎡・2階事務所25.2㎡ 電動シャッター高さ2.58m 1階は車庫や資材置き場に利用可能 キッチン1口IHコンロ ウオシュレット モニターホン
| 賃貸条件 (税込) | 賃料:110,000円 保証金:0円 礼金:1ヶ月 |
|---|
※クリック→物件の詳細【更新日:2026-05-19】




