大阪貸店舗・居抜き・倉庫店舗・事務用店舗情報
次の 10 件
11棟11 件 [1-10] を表示
面積 △▽ 賃料 △▽ 所在地 △▽ 沿線駅 △▽ 階数 △▽ 更新 △▼
心斎橋筋商店街沿いに面す 4階建ての1棟貸し物件 物販向き 1・2階17坪 3・4階居宅仕様 延べ72坪
定期借家権建物賃貸借期間 7年定期年数相談可 ●せんば心斎橋筋に面す●別途商店会費有
■ 物販向き ■ サービス店舗 ■ 美容室
| 種別 | 店舗 | 賃料 | 1,320,000円 |
|---|---|---|---|
| 面積 | 221.64㎡ | 共益費 | 共益費込み |
| 所在階 | 1階 1棟 | 保証金 | 6ヶ月 |
| 規模 | 地上 4 階建 | 解約引 | スライド |
| 所在地 | 大阪市中央区北久宝寺町3丁目 | 消費税 | 税込表示 |
| 交通 | 本町駅 徒歩 5 分 | 現状 |
一棟貸 事務所・店舗 近鉄奈良線「若江岩田」駅 徒歩約2分
3階建て
| 種別 | 店舗兼事務所 | 賃料 | 880,000円 |
|---|---|---|---|
| 面積 | 293.02㎡ | 共益費 | 共益費込み |
| 所在階 | 1階 1棟 | 敷金 | 6ヶ月 |
| 規模 | 地上 4 階建 | 礼金 | 1ヶ月 |
| 所在地 | 東大阪市岩田町3丁目 | 消費税 | 税込表示 |
| 交通 | 若江岩田駅 徒歩 2 分 | 現状 |
森之宮スカイガーデンハウス 住宅64戸・店舗11区画・事務所12区画
天井高 右室約4,000㎜ 左室約2,500㎜ 駐車場 無
| 種別 | 店舗兼事務所 | 賃料 | 問合せ下さい |
|---|---|---|---|
| 面積 | 121.36㎡ | 共益費 | |
| 所在階 | 1階 建物一部 | 敷金 | |
| 規模 | 地上 10 階建 /地下2階 | 礼金 | |
| 所在地 | 大阪市東成区中道1丁目 | 消費税 | 税込表示 |
| 交通 | 森ノ宮駅 徒歩 4 分 | 現状 |
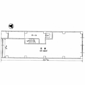
淀屋橋 北浜のオフィス街
| 種別 | 店舗 | 賃料 | 394,581円 |
|---|---|---|---|
| 面積 | 107.82㎡ | 共益費 | 96,852円 |
| 所在階 | 1階 1棟 | 保証金 | 4,304,400円 |
| 規模 | 地上 7 階建 | 解約引 | 無 |
| 所在地 | 大阪市中央区伏見町3丁目 | 消費税 | 税込表示 |
| 交通 | 淀屋橋駅 徒歩 3 分 | 現状 |
心斎橋筋商店街
■ サービス店舗 ■ 医療向き
| 種別 | 事務用店舗 | 賃料 | 問合せ下さい |
|---|---|---|---|
| 面積 | 101.16㎡ | 共益費 | |
| 所在階 | 2階 建物一部 | 保証金 | |
| 規模 | 地上 3 階建 | 解約引 | |
| 所在地 | 大阪市中央区南久宝寺町3丁目 | 消費税 | 税込表示 |
| 交通 | 本町駅 徒歩 4 分 | 現状 |
■ サービス店舗
| 種別 | 店舗兼倉庫 | 賃料 | 198,000円 |
|---|---|---|---|
| 面積 | 45㎡ | 共益費 | 30,800円 |
| 所在階 | 1階 建物一部 | 敷金 | 1ヶ月 |
| 規模 | 地上 11 階建 | 礼金 | 3ヶ月 |
| 所在地 | 大阪市中央区博労町1丁目 | 消費税 | 税込表示 |
| 交通 | 長堀橋駅 徒歩 7 分 | 現状 |
ショップ。飲食 物販が立ち並ぶ街並み 大丸心斎橋店に近く
■ 物販向き ■ サービス店舗 ■ ショールーム
| 種別 | 店舗 | 賃料 | 問合せ下さい |
|---|---|---|---|
| 面積 | 30.94㎡ | 共益費 | |
| 所在階 | 1階 建物一部 | 保証金 | |
| 規模 | 地上 6 階建 | 解約引 | |
| 所在地 | 大阪市中央区心斎橋筋1丁目 | 消費税 | 税込表示 |
| 交通 | 心斎橋駅 徒歩 2 分 | 現状 |
■ 物販向き ■ サービス店舗 ■ 医療向き■ ショールーム ■ 学習塾 ■ 写真スタジオ ■ 美容室
| 種別 | 店舗兼倉庫 | 賃料 | 297,000円 |
|---|---|---|---|
| 面積 | 85.8㎡ | 共益費 | 共益費込み |
| 所在階 | 1階 建物一部 | 保証金 | 1,000,000円 |
| 規模 | 地上 4 階建 | 解約引 | 50% |
| 所在地 | 大阪市浪速区日本橋3丁目 | 消費税 | 税込表示 |
| 交通 | 日本橋駅 徒歩 8 分 | 現状 |
■ ショールーム

| 種別 | 事務用店舗 | 賃料 | 431,200円 |
|---|---|---|---|
| 面積 | 161.98㎡ | 共益費 | 107,800円 |
| 所在階 | 1階 建物一部 | 保証金 | 6ヶ月 |
| 規模 | 地上 7 階建 | 解約引 | 3ヶ月 |
| 所在地 | 大阪市中央区瓦町1丁目 | 消費税 | 税込表示 |
| 交通 | 堺筋本町駅 徒歩 6 分 | 現状 |



