大阪市北区西天満5丁目 面積9坪 賃貸事務所物件 南森町パークビルテナント募集

TEL:06-6776-2517受付9:30〜18:00 マーシック有限会社
2026年05月26日 17時31分 (火)

<< 前のページに戻る

物件コード 2504  -  34759

☆地下鉄「南森町」駅から徒歩2分。国道1号線沿いのランドマークオフィスビル。
物件種別 事務所  建物一部
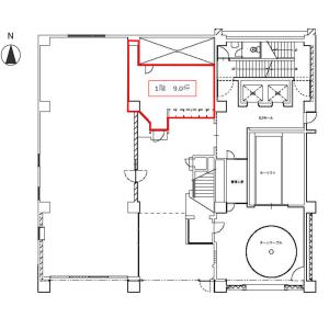
所 在 階 1階  
契約面積 9.00 坪( 29.75㎡)
賃料 (税込)
税率 10%
お問合せ下さい    
   
特記事項 更新料無し
特記事項
●火災保険加入要

物件概要 写真A

   
住 所 大阪府大阪市北区西天満5丁目
交 通 地下鉄堺筋線     南森町 駅   徒歩 2 分
地下鉄谷町線   南森町駅 徒歩2分
区 分 貸ビル (規模: 中型 )
構造規模 SRC造  地上 9 階建  /地下1階
建築年月1978年9月 新耐震
駐車施設 有り   収容 16台
本体設備 乗用EV:2基 (福祉用EVあり)   ●流し台:共同 (電気温水器) ●洗面台:男女別●トイレ:男女別   ●空調関係:個別空調 ●セキュリティー:機械警備
使用時間 24時間使用可 日祝日の使用:使用可
道路 一方   国道1号線(南) 大通り
その他  光ケーブル 商業地域   基準階床:タイルカーペット  
備考■新耐震基準適合(耐震改修工事完了) 7:00〜21:00(月〜土) *日祝閉館 ただし、セキュリティカードで24時間出入可
更新日 2026-02-02  取引態様:仲介

※内覧、諸条件の相談はお気軽ご連絡ください。
ご来店前には必ずご連絡をお願い申し上げます。 電話06-6776-2517 土日祝日定休   

<< 前のページに戻る

おすすめ物件

おすすめ情報

広告掲載募集中

テナント募集掲載物件募集中!
当サイトへの掲載料は無料です。 貸し倉庫 貸し工場 貸し土地 貸しビル 商業物件 事業用物件 賃貸物件 売買物件 仲介物件を募集しております。
物件資料は、FAX 06-6776-2518 又は、メールにて受付ています。 (※ポータプルサイト掲載は有料になります。)

サイト運営会社

マーシック有限会社 仲介管理
〒542-0063
大阪市中央区東平2丁目1番28号
ノバカネイチ上町台103号

TEL:06-6776-2517
受付:9:30-18:00
定休日:土日祝日