大阪市生野区巽南5丁目 面積181坪 賃貸倉庫物件 / リフト 一棟貸し物件テナント募集

TEL:06-6776-2517受付9:30〜18:00 マーシック有限会社
2026年03月26日 05時24分 (木)

<< 前のページに戻る

物件コード 11343  -  35480

☆貸倉庫A棟・B棟 大規模改装中(男女別トイレ新設、倉庫内LED照明新設、荷物用リフト新設、床の防塵塗装)
:巽南倉庫B 中(防塵塗装、倉庫内LED照明、 男女別トイレ、荷物用リフト1t新設予定)
物件種別 倉庫  1棟貸し
所 在 階   1+2階 B
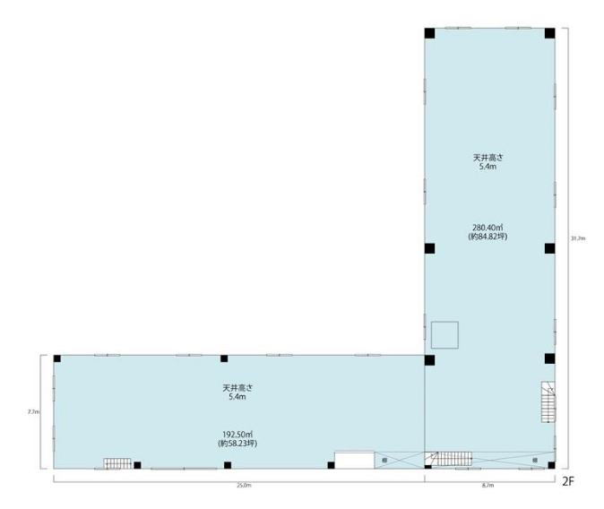
契約面積 181.18 坪( 598.95㎡)
多層階: 1階:84.82坪 2階:84.82坪
賃料 (税込)
税率 10%
賃料:900,000円     共益費込み
敷金:3.0ヶ月     礼金:1ヶ月
特記事項 更新料無し
特記事項
●火災保険加入要●賃貸保証会社加入要
備考2024年大規模改装(防塵塗装、倉庫内LED照明、男女別トイレ、荷物用リフト1t新設予定)/全ての設備の維持メンテンナンス・修理・交換の費用は借主負担/増築未登記です

物件概要  写真B

   
住 所 大阪府大阪市生野区巽南5丁目
交 通 JR関西本線     平野 駅   徒歩 9 分
区 分 倉庫・工場 (規模: 大型 )
構造規模 鉄骨造  地上 2 階建 
建築年月1970年2月 新耐震
駐車施設  
本体設備   ●洗面台:室内専用●トイレ:室内専用   ●セキュリティー:無
使用時間 24時間使用可 日祝日の使用:使用可
道路 一方   西6.0m ●阪神高速14号松原線 平野
その他 準工業地域    
備考現状有姿 1F:280.40㎡2F:280.40㎡ 大規模改装中(男女別トイレ2箇所新設、倉庫内LED照明新設、荷物用リフト1基新設、床の防塵塗装) ※敷金:3ヶ月/礼金:1ヶ月(2年以内の解約は敷金返金無し)
更新日 2026-03-25  取引態様:仲介

※内覧、諸条件の相談はお気軽ご連絡ください。
ご来店前には必ずご連絡をお願い申し上げます。 電話06-6776-2517 土日祝日定休   

<< 前のページに戻る

おすすめ物件

おすすめ情報

広告掲載募集中

テナント募集掲載物件募集中!
当サイトへの掲載料は無料です。 貸し倉庫 貸し工場 貸し土地 貸しビル 商業物件 事業用物件 賃貸物件 売買物件 仲介物件を募集しております。
物件資料は、FAX 06-6776-2518 又は、メールにて受付ています。 (※ポータプルサイト掲載は有料になります。)

サイト運営会社

マーシック有限会社 仲介管理
〒542-0063
大阪市中央区東平2丁目1番28号
ノバカネイチ上町台103号

TEL:06-6776-2517
受付:9:30-18:00
定休日:土日祝日