大阪市中央区船越町2丁目 面積56坪 賃貸事務所物件 テナント募集

TEL:06-6776-2517受付9:30〜18:00 マーシック有限会社
2026年05月26日 17時39分 (火)

<< 前のページに戻る

物件コード 1148  -  36220


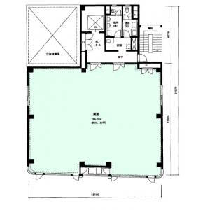
:ワンフロア OA床
物件種別 事務所  建物一部
所 在 階 7階  
契約面積 56.39 坪( 186.41㎡)
賃料 (税込)
税率 10%
賃料:806,377円     共益費込み
保証金:4,398,420円     解約引:0円
特記事項 更新料無し
特記事項
●火災保険加入要●賃貸保証会社加入要

物件概要 

   
住 所 大阪府大阪市中央区船越町2丁目
交 通 地下鉄谷町線     天満橋 駅   徒歩 7 分
京阪電鉄本線   天満橋駅 徒歩9分
区 分 貸ビル (規模: 小型 )
構造規模 鉄骨造  地上 9 階建 
建築年月1991年 新耐震
駐車施設 立体駐車場  
本体設備 乗用EV:1基   ●流し台:共同 ●洗面台:男女別●トイレ:男女別   ●セキュリティー:機械警備
使用時間 24時間使用可 日祝日の使用:使用可
道路 一方  
その他 商業地域   基準階床:タイルカーペット OAフロア  
備考都心部で重宝する、ハイルーフ対応の機械式駐車場  機械式立体駐車場(月額:30,000円[税別]) 敷地内には、ターンテーブル付きで入出庫がスムーズな機械式駐車場を完備。車サイズは全高1,600mmまで対応しており、営業車でのアクセスにも便利です。(※別途契約要。サイズ制限あり。空き状況要確認) 原状回復実費負担 換気扇の加湿機能使用不可
更新日 2026-03-12  取引態様:仲介

※内覧、諸条件の相談はお気軽ご連絡ください。
ご来店前には必ずご連絡をお願い申し上げます。 電話06-6776-2517 土日祝日定休   

<< 前のページに戻る

おすすめ物件

おすすめ情報

広告掲載募集中

テナント募集掲載物件募集中!
当サイトへの掲載料は無料です。 貸し倉庫 貸し工場 貸し土地 貸しビル 商業物件 事業用物件 賃貸物件 売買物件 仲介物件を募集しております。
物件資料は、FAX 06-6776-2518 又は、メールにて受付ています。 (※ポータプルサイト掲載は有料になります。)

サイト運営会社

マーシック有限会社 仲介管理
〒542-0063
大阪市中央区東平2丁目1番28号
ノバカネイチ上町台103号

TEL:06-6776-2517
受付:9:30-18:00
定休日:土日祝日