八尾市南木の本8丁目 面積120坪 賃貸工場物件 / 駐車場付 一棟貸し物件テナント募集

TEL:06-6776-2517受付9:30〜18:00 マーシック有限会社
2026年05月01日 18時10分 (金)

<< 前のページに戻る

物件コード 11838  -  36227

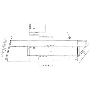
☆準工業地域 貸工場 1階/100坪 2階/20坪 建物前面駐車場あり
:1階 工場倉庫に 2階事務所に 引渡時期 2026年7月上旬
物件種別 工場  1棟貸し
所 在 階   1+2階
契約面積 119.81 坪( 396.07㎡)
多層階: 1階:100坪 2階:20坪
賃料 (税込)
税率 10%
賃料:550,000円     共益費込み
保証金:6.0ヶ月     解約引:2ヶ月
特記事項 更新料無し 引渡日:2026.7月初め
特記事項
●火災保険加入要●賃貸保証会社加入要初回/賃料の100%・更新料/賃料の10%(年1回)

物件概要  写真B 図面

   
住 所 大阪府八尾市南木の本8丁目
交 通 地下鉄谷町線     八尾南 駅   徒歩 13 分
区 分 倉庫・工場 (規模: 小型 )
構造規模 鉄骨造  地上 2 階建 
建築年月2007年8月 新耐震
駐車施設 有り  
本体設備   ●洗面台:室内専用●トイレ:室内専用   ●セキュリティー:無
使用時間 24時間使用可 日祝日の使用:使用可
道路 一方   西側道路幅員5m 
その他 準工業地域    
更新日 2026-04-30  取引態様:仲介

※内覧、諸条件の相談はお気軽ご連絡ください。
ご来店前には必ずご連絡をお願い申し上げます。 電話06-6776-2517 土日祝日定休   

<< 前のページに戻る

おすすめ物件

おすすめ情報

広告掲載募集中

テナント募集掲載物件募集中!
当サイトへの掲載料は無料です。 貸し倉庫 貸し工場 貸し土地 貸しビル 商業物件 事業用物件 賃貸物件 売買物件 仲介物件を募集しております。
物件資料は、FAX 06-6776-2518 又は、メールにて受付ています。 (※ポータプルサイト掲載は有料になります。)

サイト運営会社

マーシック有限会社 仲介管理
〒542-0063
大阪市中央区東平2丁目1番28号
ノバカネイチ上町台103号

TEL:06-6776-2517
受付:9:30-18:00
定休日:土日祝日