東大阪市吉田4丁目 面積33坪 賃貸事務所付倉庫物件 / 駐車場付テナント募集

TEL:06-6776-2517受付9:30〜18:00 マーシック有限会社
2026年03月04日 14時41分 (水)

<< 前のページに戻る

物件コード 11869  -  36296

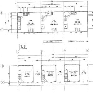
☆2階建て倉庫付事務所 1階倉庫・2階事務所 駐車スペース
:1階屋内車庫18㎡・倉庫32.4㎡ 2階事務所60.48㎡ 事務所エアコン付き 賃料に駐車2台分含む
物件種別 事務所付倉庫  《連棟式》 建物一部
所 在 階   1+2階
契約面積 33.28 坪( 110.00㎡)
多層階: 1階:12.22坪 2階:18.3坪
賃料 (税込)
税率 10%
賃料:183,700円     共益費:5,500円
保証金:5.0ヶ月     解約引:3ヶ月
特記事項 更新料無し
現況・引渡日
改装渡し 現況:入居中 引渡日:2026.9
特記事項
●火災保険加入要●賃貸保証会社加入要

物件概要 

   
住 所 大阪府東大阪市吉田4丁目
交 通 近鉄けいはんな線     吉田 駅   徒歩 20 分
区 分 コンパクトオフィス (規模: 小型 )
構造規模 鉄骨造  地上 2 階建 
建築年月1999年2月 新耐震
駐車施設 有り  
本体設備   ●流し台:室内専用 (電気温水器) ●洗面台:室内専用●トイレ:室内専用   ●セキュリティー:無
使用時間 24時間使用可 日祝日の使用:使用可
道路 一方   西側6m
その他 第一種住居地域    
更新日 2026-03-04  取引態様:仲介

※内覧、諸条件の相談はお気軽ご連絡ください。
ご来店前には必ずご連絡をお願い申し上げます。 電話06-6776-2517 土日祝日定休   

<< 前のページに戻る

おすすめ物件

おすすめ情報

広告掲載募集中

テナント募集掲載物件募集中!
当サイトへの掲載料は無料です。 貸し倉庫 貸し工場 貸し土地 貸しビル 商業物件 事業用物件 賃貸物件 売買物件 仲介物件を募集しております。
物件資料は、FAX 06-6776-2518 又は、メールにて受付ています。 (※ポータプルサイト掲載は有料になります。)

サイト運営会社

マーシック有限会社 仲介管理
〒542-0063
大阪市中央区東平2丁目1番28号
ノバカネイチ上町台103号

TEL:06-6776-2517
受付:9:30-18:00
定休日:土日祝日