大阪市東淀川区相川3丁目 面積107坪 賃貸事務所付倉庫物件 相川倉庫テナント募集

TEL:06-6776-2517受付9:30〜18:00 マーシック有限会社
2026年03月27日 05時21分 (金)

<< 前のページに戻る

物件コード 11899  -  36337

☆昇降機:有(残置物)3階建て 事務所、倉庫、作業場など  2tトラック、ハイエースなど進入可能
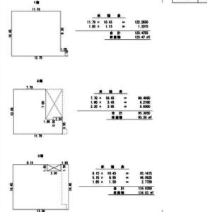
:1階倉庫(37.34坪)2階倉庫・事務所(28.84坪)3階倉庫(40.54坪)
物件種別 事務所付倉庫  建物一部
所 在 階   1+2+3階
契約面積 106.74 坪( 352.86㎡)
多層階: 1階:37.34坪 2階:28.84坪 3階:40.54坪
賃料 (税込)
税率 10%
賃料:242,000円     共益費込み
敷金:4.0ヶ月     礼金:2ヶ月
特記事項 更新料無し
特記事項
●火災保険加入要●賃貸保証会社加入要日本テナント保証

物件概要  写真B

   
住 所 大阪府大阪市東淀川区相川3丁目
交 通 阪急電鉄京都線     相川 駅   徒歩 5 分
区 分 倉庫 (規模: 小型 )
構造規模 鉄骨造  地上 3 階建 
建築年月1981年 新耐震
駐車施設  
本体設備     ●セキュリティー:無
使用時間 日祝日の使用:使用可
道路 一方  
その他 第二種中高層住居専用地域    
備考鉄骨造亜鉛メッキ鋼板ぶき3階建 現状での引渡し希望 建物面積1F 123.47㎡ 2F 95.36㎡ 3F 134.03㎡ 天井高:1階:4.2m〜2m   2階:1.75m   3階:2.2m〜3m 水道光熱費、警備、消防点検費用、設備保守点検等の実費費用
更新日 2026-03-26  取引態様:仲介

※内覧、諸条件の相談はお気軽ご連絡ください。
ご来店前には必ずご連絡をお願い申し上げます。 電話06-6776-2517 土日祝日定休   

<< 前のページに戻る

おすすめ物件

おすすめ情報

広告掲載募集中

テナント募集掲載物件募集中!
当サイトへの掲載料は無料です。 貸し倉庫 貸し工場 貸し土地 貸しビル 商業物件 事業用物件 賃貸物件 売買物件 仲介物件を募集しております。
物件資料は、FAX 06-6776-2518 又は、メールにて受付ています。 (※ポータプルサイト掲載は有料になります。)

サイト運営会社

マーシック有限会社 仲介管理
〒542-0063
大阪市中央区東平2丁目1番28号
ノバカネイチ上町台103号

TEL:06-6776-2517
受付:9:30-18:00
定休日:土日祝日