東大阪市末広町 面積103坪 賃貸事務所兼倉庫物件 末広町 1棟貸し建物/ 駐車場付 一棟貸し物件テナント募集

TEL:06-6776-2517受付9:30〜18:00 マーシック有限会社
2026年05月18日 14時05分 (月)

<< 前のページに戻る

物件コード 2546  -  36271

☆3階建て1棟貸しビル
:エアコン(残置物扱い)
物件種別 事務所兼倉庫  1棟貸し
所 在 階   1+2+3階
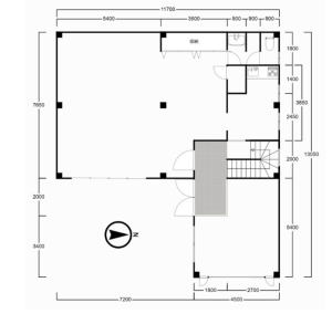
契約面積 103.27 坪( 341.40㎡)
多層階: 1階:34.42坪 2階:34.42坪 3階:34.42坪
賃料 (税込)
税率 10%
賃料:550,000円     共益費込み
敷金:0円     礼金:2ヶ月
特記事項 更新料無し
特記事項
●火災保険加入要●賃貸保証会社加入要

物件概要  写真B

   
住 所 大阪府東大阪市末広町
交 通 近鉄難波・奈良線     瓢箪山 駅   徒歩 7 分
区 分 事務所兼倉庫 (規模: 小型 )
構造規模 鉄骨造  地上 3 階建 
建築年月2003年5月 新耐震
駐車施設 有り  
本体設備 乗用EV:2基     ●セキュリティー:未確認
使用時間 日祝日の使用:使用可
道路  
その他 近隣商業地域    
備考都市ガス,電気,上水道,下水道,給湯,トイレ専用,トイレ2箇所,シャワー,冷房,暖房,エアコン,外観タイル張り 敷地内スペース使用可 (駐車2台程度、バイク置き場、駐輪) 案内方法:立会(要電話予約) 9:00~18:00(日曜不可) 飲食店不可
更新日 2026-05-18  取引態様:仲介

※内覧、諸条件の相談はお気軽ご連絡ください。
ご来店前には必ずご連絡をお願い申し上げます。 電話06-6776-2517 土日祝日定休   

<< 前のページに戻る

おすすめ物件

おすすめ情報

広告掲載募集中

テナント募集掲載物件募集中!
当サイトへの掲載料は無料です。 貸し倉庫 貸し工場 貸し土地 貸しビル 商業物件 事業用物件 賃貸物件 売買物件 仲介物件を募集しております。
物件資料は、FAX 06-6776-2518 又は、メールにて受付ています。 (※ポータプルサイト掲載は有料になります。)

サイト運営会社

マーシック有限会社 仲介管理
〒542-0063
大阪市中央区東平2丁目1番28号
ノバカネイチ上町台103号

TEL:06-6776-2517
受付:9:30-18:00
定休日:土日祝日