面積 △▽ 賃料 △▽ 住所 ▲▽ 駅 △▽ 階数 △▽ 種別 △▽ 更新 △▽
該当物件79 件<<先頭 <前のページ
次のページ> 最終>>
物件コード106-35443 事務所付倉庫
| 種別 | |
|---|---|
| 面積 | 53.60 坪( 177.19 ㎡) 1階:20坪 2階:33.6坪 |
| 所在地 | 大阪府大阪市中央区上町1丁目 地下鉄谷町線 谷町六丁目 駅 徒歩 5 分 地下鉄長堀鶴見緑地線 谷町六丁目駅 徒歩5分 |
1階倉庫/駐車場:照明・トイレ 2階事務所:照明・個別空調・トイレ・OAフロア 1~2階合計53.6坪(1階:駐車/倉庫スペース20坪・2階:事務所33.6坪)
| 賃貸条件 (税込) | 賃料:374,000円 敷金:6ヶ月 礼金:スライド |
|---|
※クリック→物件の詳細【更新日:2025-11-06】
物件コード4427-36025 倉庫
| 種別 | |
|---|---|
| 面積 | 0.00 坪( 0.00 ㎡) |
| 所在地 | 大阪府大阪市北区中津3丁目 地下鉄御堂筋線 中津 駅 徒歩 14 分 阪急電鉄宝塚線 中津駅 徒歩2分 |
| 賃貸条件 (税込) | 賃料:165,000円 敷金:0円 礼金:2ヶ月 |
|---|
※クリック→物件の詳細【更新日:2025-11-06】
物件コード3798-34808 事務所付倉庫
| 種別 | 事務所付 電動シャッター / 準工業地域 |
|---|---|
| 面積 | 79.39 坪( 262.44 ㎡) 1階:39.69坪 2階:39.69坪 |
| 所在地 | 大阪府大阪市北区中津6丁目 地下鉄御堂筋線 中津 駅 徒歩 4 分 |
4階建の1-2階部分貸し 1階 倉庫兼駐車場 2階事務所 営業所向き
| 賃貸条件 (税込) | 賃料:753,500円 保証金:6ヶ月 解約引:2ヶ月 |
|---|
※クリック→物件の詳細【更新日:2025-10-20】
物件コード11703-36023 倉庫 一棟貸し物件
| 種別 | リフト 事務所付 駐車場付 電動シャッター / 準工業地域 |
|---|---|
| 面積 | 143.39 坪( 474.03 ㎡) |
| 所在地 | 大阪府大阪市浪速区久保吉1丁目 JR大阪環状線 芦原橋 駅 徒歩 7 分 |
2階建貸倉庫 前面駐車スペース付き 倉庫2階建て1階64坪・2階51坪 事務所棟2階建て1階13坪・2階13坪 EVあり
| 賃貸条件 (税込) | 賃料:1,100,000円 保証金:6ヶ月 解約引:2ヶ月 |
|---|
※クリック→物件の詳細【更新日:2025-11-06】
物件コード11688-36002 事務所付倉庫 一棟貸し物件
| 種別 | リフト 事務所付 駐車場付 工場使用可 / 準工業地域 |
|---|---|
| 面積 | 180.77 坪( 597.60 ㎡) 1階:43.56坪 2階:45.74坪 3階:45.74坪) |
| 所在地 | 大阪府大阪市鶴見区今津中3丁目 JR学研都市線 徳庵 駅 徒歩 8 分 |
鉄骨造4階建 テナント・倉庫・作業場 ☆車庫10台(車種による)リフトあり 1階 144.00㎡ 2階~4階 151.20㎡
| 賃貸条件 (税込) | 賃料:1,210,000円 敷金:1,100,000円 礼金:4,840,000円 |
|---|
※クリック→物件の詳細【更新日:2025-11-06】
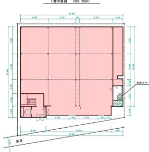
物件コード5672-7316 事務所付倉庫 一棟貸し物件
| 種別 | クレーン 事務所付 駐車場付 電動シャッター / 工業地域 |
|---|---|
| 面積 | 1,124.35 坪( 3,716.86 ㎡) |
| 所在地 | 大阪府大阪市城東区今福南4丁目 地下鉄長堀鶴見緑地線 蒲生四丁目 駅 徒歩 12 分 地下鉄今里筋線 蒲生四丁目駅 徒歩12分 |
クレーン2.8t3基有 北側倉庫600坪∔354坪と南側148坪 2階事務所21坪 道路/北8.0m・ 南8.0m 大型貸倉庫 天井高あり8.7~9.6m、扉H5.2m×W5.8m
| 賃貸条件 (税込) | 賃料:4,620,000円 保証金:33,600,000円 解約引:9,240,000円 |
|---|
※クリック→物件の詳細【更新日:2025-09-30】
物件コード11575-35853 倉庫 一棟貸し物件
| 種別 | リフト / 工業専用地域 |
|---|---|
| 面積 | 1,067.22 坪( 3,528.00 ㎡) 1階:254坪 2階:50坪 3階:254坪) |
| 所在地 | 兵庫県神戸市東灘区住吉浜町 阪神電鉄本線 住吉 駅 徒歩 14 分 神戸新交通六甲アイランド 南魚崎駅 徒歩15分 |
大型貸倉庫 5階建て 1.3.4.5各階254坪 2階50坪 臨港地区内 工業港区 検査済証あり 荷物用リフト約2.5t 1基(W約4.5m×D約2.0m×H約2.5m)ヤードあり駐車スペース付き
| 賃貸条件 (税込) | 賃料:5,170,000円 敷金:6ヶ月 礼金:2ヶ月 |
|---|
※クリック→物件の詳細【更新日:2025-09-01】
物件コード2409-34540 倉庫
| 種別 | / 商業地域 |
|---|---|
| 面積 | 28.86 坪( 95.41 ㎡) |
| 所在地 | 大阪府大阪市北区兎我野町 地下鉄谷町線 東梅田 駅 徒歩 7 分 |
所在階 1階 現在配送センター営業中 店舗使用可
| 賃貸条件 (税込) | 賃料:550,000円 敷金:8ヶ月 礼金:2ヶ月 |
|---|
※クリック→物件の詳細【更新日:2025-11-06】
物件コード8334-28765 倉庫 一棟貸し物件
| 種別 | / 準工業地域 |
|---|---|
| 面積 | 29.95 坪( 99.00 ㎡) |
| 所在地 | 大阪府八尾市八尾木1丁目 JR関西本線 志紀 駅 徒歩 16 分 |
業種・軽作業相談可 鉄骨造平屋建 天井高あり 電気 上下水道 トイレ 洗面台 手動シャッター高さ2.29m×幅3.5m
| 賃貸条件 (税込) | 賃料:220,000円 敷金:0円 礼金:330,000円 |
|---|
※クリック→物件の詳細【更新日:2025-09-29】
物件コード10212-33667 事務所付倉庫
| 種別 | 事務所付 駐車場付 電動シャッター / 第二種中高層住居専用地域 |
|---|---|
| 面積 | 7.68 坪( 25.40 ㎡) 1階:11.8坪 2階:13.6坪 |
| 所在地 | 大阪府大阪市東住吉区公園南矢田3丁目 地下鉄御堂筋線 あびこ 駅 徒歩 14 分 |
2階建て事務所付き倉庫 1F/11.8坪 2F/13.8坪 建物前面駐車場6台スペース付き 駐車6台は魅力 営業所向き
| 賃貸条件 (税込) | 賃料:192,500円 保証金:6ヶ月 解約引:3ヶ月 |
|---|
※クリック→物件の詳細【更新日:2025-09-09】




