面積 △▽ 賃料 △▽ 住所 △▽ 駅 △▽ 階数 ▲▽ 種別 △▽ 更新 △▽
該当物件282 件<<先頭 <前のページ
次のページ> 最終>>
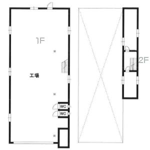
物件コード5401-4904 事務所付倉庫
| 種別 | 事務所付 駐車場付 電動シャッター / 準工業地域 |
|---|---|
| 面積 | 28.31 坪( 93.59 ㎡) 1階:12.74坪 2階:15.57坪 |
| 所在地 | 大阪府東大阪市楠根1丁目 地下鉄中央線 長田 駅 徒歩 15 分 |
1階は倉庫12.74坪 2階は事務所15.57坪 延べ28.31坪 前面3台駐車可 エアコン,オール電化 1Fフリースペース 電動シャッター 2Fオフィススペース 個別空調、トイレ
| 賃貸条件 (税込) | 賃料:385,000円 保証金:10ヶ月 解約引:3ヶ月 |
|---|
※クリック→物件の詳細【更新日:2026-03-04】
物件コード6147-11189 事務所付倉庫
| 種別 | 事務所付 駐車場付 電動シャッター / 第二種住居地域 |
|---|---|
| 面積 | 26.30 坪( 86.94 ㎡) 1階:12.2坪 2階:14.1坪 |
| 所在地 | 大阪府松原市別所2丁目 近鉄南大阪線 恵我ノ荘 駅 徒歩 18 分 近鉄南大阪線 河内松原駅 徒歩22分 |
貸事務所付倉庫 1階倉庫+2階事務所 駐車場2台スペース付き 営業所向き C・D2区画募集中です。
| 賃貸条件 (税込) | 賃料:165,000円 保証金:6ヶ月 解約引:2ヶ月 |
|---|
※クリック→物件の詳細【更新日:2026-03-16】
物件コード6190-11691 倉庫 一棟貸し物件
| 種別 | 事務所付 駐車場付 電動シャッター / 準住居地域 |
|---|---|
| 面積 | 240.12 坪( 793.79 ㎡) 1階:120.06坪 2階:112.92坪 |
| 所在地 | 大阪府寝屋川市堀溝2丁目 京阪電鉄本線 萱島 駅 徒歩 20 分 |
国道163号線に面する・駐車スペース広い!・2階建て倉庫 1 階事務所あり 大型車可 天井高:1階3.85m~4m・2階2.7m~3.1m シャッター2カ所 H3.7m×W3.8m 吹き抜け一部あり
| 賃貸条件 (税込) | 賃料:1,265,000円 敷金:9,200,000円 礼金:2,530,000円 |
|---|
※クリック→物件の詳細【更新日:2026-05-08】
物件コード6282-12704 事務所付倉庫
| 種別 | 事務所付 駐車場付 電動シャッター / 準工業地域 |
|---|---|
| 面積 | 24.60 坪( 81.32 ㎡) 1階:11.5坪 2階:13.1坪 |
| 所在地 | 大阪府大阪市平野区長吉川辺2丁目 地下鉄谷町線 長原 駅 徒歩 9 分 |
1階倉庫11.5坪 2階事務所13.1坪 延べ24.5坪 貸事務所付倉庫(営業所) 前面駐車スペース付(月額賃料に含む)
| 賃貸条件 (税込) | 賃料:176,000円 共益費:3,300円 保証金:6ヶ月 解約引:3ヶ月 |
|---|
※クリック→物件の詳細【更新日:2026-03-16】
物件コード6287-12709 事務所付倉庫
| 種別 | 事務所付 駐車場付 電動シャッター / 第二種中高層住居専用地域 |
|---|---|
| 面積 | 23.65 坪( 78.16 ㎡) 1階:11坪 2階:12.65坪 |
| 所在地 | 大阪府大阪市平野区長吉長原西2丁目 地下鉄谷町線 出戸 駅 徒歩 7 分 |
貸事務所付倉庫(営業所) 前面駐車スペース2台付(月額賃料に含む) 1F/11坪 2F/12.56坪 1F:電動シャッター 倉庫(スケルトン) 2F:事務所内装 ミニキッチン トイレ
| 賃貸条件 (税込) | 賃料:194,700円 共益費:3,300円 保証金:6ヶ月 解約引:3ヶ月 |
|---|
※クリック→物件の詳細【更新日:2026-04-30】
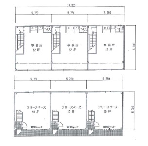
物件コード6372-13200 事務所付倉庫
| 種別 | 事務所付 駐車場付 / 準工業地域 |
|---|---|
| 面積 | 92.56 坪( 306.00 ㎡) 1階:46.28坪 2階:46.28坪 |
| 所在地 | 大阪府大阪市東住吉区杭全6丁目 JR関西本線 東部市場前 駅 徒歩 3 分 |
事務所付き倉庫 駐車スペース無料 営業所向き A室北側道路とB室(B室は25号線側) B棟 公道 南 接道幅員 28m 1Fフリースペース フォークリフト用電源、電動シャッター 2Fオフィススペース 個別空調、男女別トイレ
| 賃貸条件 (税込) | 賃料:1,276,000円 保証金:10ヶ月 解約引:3ヶ月 |
|---|
※クリック→物件の詳細【更新日:2026-03-04】
物件コード6378-13349 事務所付倉庫 一棟貸し物件
| 種別 | / 近隣商業地域 |
|---|---|
| 面積 | 60.42 坪( 199.75 ㎡) 1階:28.28坪 2階:32.14坪 |
| 所在地 | 大阪府守口市豊秀町1丁目 地下鉄谷町線 太子橋今市 駅 徒歩 2 分 |
倉庫付き事務所 1階倉庫・店舗28坪 2階事務所28坪 駐車場4台付き(前面スペース)トイレ2カ所 2026年5月上旬入居可 営業所向き 1階:28.28坪フリースペース(店舗・倉庫に) 2階:32.14坪事務所(エアコン付・トイレ・キッチン)
| 賃貸条件 (税込) | 賃料:990,000円 保証金:10ヶ月 解約引:3ヶ月 |
|---|
※クリック→物件の詳細【更新日:2026-03-04】
物件コード6494-14676 事務所付倉庫
| 種別 | 事務所付 駐車場付 電動シャッター / 準工業地域 |
|---|---|
| 面積 | 22.00 坪( 72.73 ㎡) 1階:10坪 2階:12坪 |
| 所在地 | 大阪府藤井寺市西大井2丁目 近鉄南大阪線 土師ノ里 駅 徒歩 21 分 JR関西本線 柏原駅 徒歩24分 |
藤井寺市の事務所付倉庫 駐車場付 営業所向き 追加駐車場希望の場合隣接有料駐車場あり 向かって左側A号 駐車場2台付き 1F/10坪 2F/12坪 南側道路幅員:6m
| 賃貸条件 (税込) | 賃料:176,000円 保証金:6ヶ月 解約引:2ヶ月 |
|---|
※クリック→物件の詳細【更新日:2026-04-30】
物件コード6663-15943 事務所付倉庫
| 種別 | 事務所付 駐車場付 電動シャッター / 第一種住居地域 |
|---|---|
| 面積 | 25.00 坪( 82.64 ㎡) 1階:11.5坪 2階:13.5坪 |
| 所在地 | 大阪府大阪市平野区長吉川辺3丁目 地下鉄谷町線 長原 駅 徒歩 6 分 |
貸事務所付倉庫(営業所向き) 駐車場付きです。1階倉庫10.5坪・2階事務所13.5坪 駐車場2台付き 右端 E号室
| 賃貸条件 (税込) | 賃料:214,500円 保証金:6ヶ月 解約引:3ヶ月 |
|---|
※クリック→物件の詳細【更新日:2026-04-30】
物件コード6796-17165 事務所付倉庫
| 種別 | / 商業地域 |
|---|---|
| 面積 | 247.17 坪( 817.09 ㎡) 1階:63.27坪 2階:67.65坪 3階:67.65坪) |
| 所在地 | 大阪府大阪市西区立売堀2丁目 地下鉄中央線 阿波座 駅 徒歩 5 分 地下鉄長堀鶴見緑地線 西大橋駅 徒歩8分 |
倉庫 配送センター 営業所に リフト(1階-3階)240kg 1基付 *出入口シャッター2ヶ所 (南側・北側) 817.09 ㎡(約250坪)1階~3階部分の賃貸 1階倉庫内駐車可 3台
| 賃貸条件 (税込) | 賃料:1,650,000円 保証金:6ヶ月 解約引:3ヶ月 |
|---|
※クリック→物件の詳細【更新日:2026-02-26】



